← Volver al inicio

Chalet en Venta – Balcón del Júcar

Chalet imagen 2 Chalet imagen 3

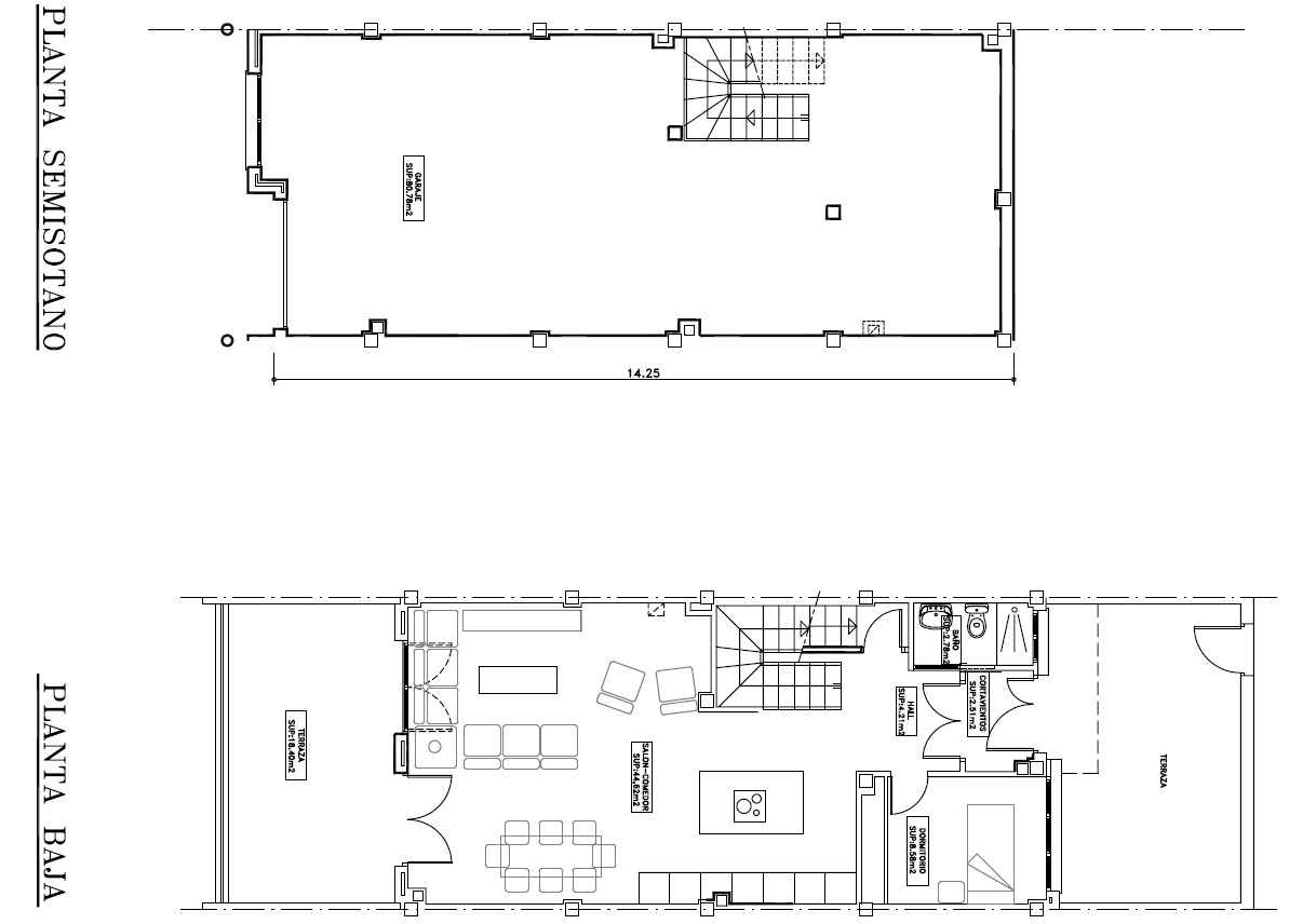
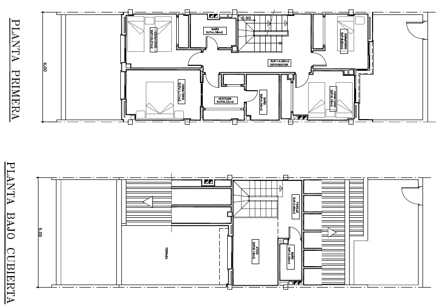
MEMORIAS CALIDADES 4 VIVIENDAS EN RESIDENCIA BALCON DEL JUCAR

ESTRUCTURA.- Estructura de hormigón armado, con forjados planos y garantizada por organismo de control técnico homologado independiente, cumpliendo con las especificaciones del estudio geotécnico y la normativa estructural vigente.

CERRAMIENTOS DE FACHADA Y CUBIERTA.- Cerramiento de ½ pie de ladrillo gresificado visto, aislado térmicamente por su cara interior según requerimiento de normativa, y cubierta de teja mixta.

TABIQUERÍA INTERIOR.- Separación entre viviendas se compone de ladrillo cerámico perforado de 11 cm de espesor y a ambos lados una hoja de trasdosado mediante placa de yeso laminado de 19mm sobre perfiles de acero galvanizado con aislamiento térmico y acústico de lana de roca. La tabiquería interior se compone de placa de yeso laminado de espesor 19mm en las dos caras de tabique colocadas sobre perfiles de acero galvanizado con aislamiento acústico de lana de roca.

SOLADOS Y ALICATADO INTERIOR.- Solado de gres porcelánico rectificado de gran formato en toda la vivienda de la marca Porcelanosa o similar. Alicatado de gres porcelánico en paredes de baños y cocina de la marca Porcelanosa o similar. El suelo de planta baja cuenta con aislamiento térmico y acústico. Garaje solado con plaqueta de gres.

CARPINTERIA Y ACRISTALAMIENTO EXTERIOR.- Carpintería exterior con perfiles de PVC de primera calidad en blanco, con doble acristalamiento climalit o similar. Persianas de aluminio del mismo color que la carpintería, con lamas de poliuretano inyectado para conseguir mayor aislamiento térmico. Persiana en ventanal del salón motorizadas. Puerta garaje motorizada.

CARPINTERIA INTERIOR.- Puerta de acceso a la vivienda acorazada, con estructura y premarco de acero, dispositivo de bloqueo, doble cerradura de seguridad y mirilla. Acabada en la cara exterior con tablero de lacado blanco igual a las existentes. Puertas de paso de madera chapadas en roble o en blanco. Frente de armarios empotrados con puertas correderas o batientes según diseño, y forrados interiormente con altillo y barra.

COCINA.- Amueblada con muebles bajos y altos, variando en función de la tipología de la vivienda, equipada con placa vitrocerámica.

SANITARIOS Y GRIFERÍA.- Lavabos de encastrar en baño principal sobre encimera, sanitario color blanco 1ª marca nacional con grifería monomando.

PINTURA.- Pintura de plástico liso en blanco en toda la vivienda.

CLIMATIZACIÓN.- Suelo radiante y refrescante en toda la casa menos en el garaje, con termostato individualizado por estancia. La unidad exterior de aerotermia. El Agua caliente sanitaria (ACS) también se produce mediante bomba de calor por aerotermia, manteniendo un acumulador con agua caliente, con apoyo puntual de resistencia eléctrica.

ELECTRICIDAD.- Instalación eléctrica de grado elevado, mecanismos de primera marca. Tomas de televisión en salón, dormitorios, y ático, con toma de teléfono y de datos en salón y dormitorios. Video portero electrónico en la entrada.

INSTALACIONES ESPECIALES.- Preparación de bancadas en la estructura para una posible contratación por el propietario de paneles fotovoltaicos.

Nota: los materiales definidos serán susceptibles de modificación por la dirección de obra, pero dentro del nivel de calidad que en esta memoria se define.

Si estás interesado, póngase en contacto con nosotros

Contactar